Rueras – Via Flurin

 

Klammern und Kontrastieren – Neubau in Beton und Holz

«Ein Haus zwischen Rohheit und Wärme, Offenheit und Geschlossenheit»

Bauprojekt  Direktauftrag

Projektart  Bauprojekt

Projektleitung  Larissa Cavegn

Mitarbeit  Pius Cavegn

Fotos  Ingo Rasp

Jahr  2023 – 2025

Städtebauliche Einordnung

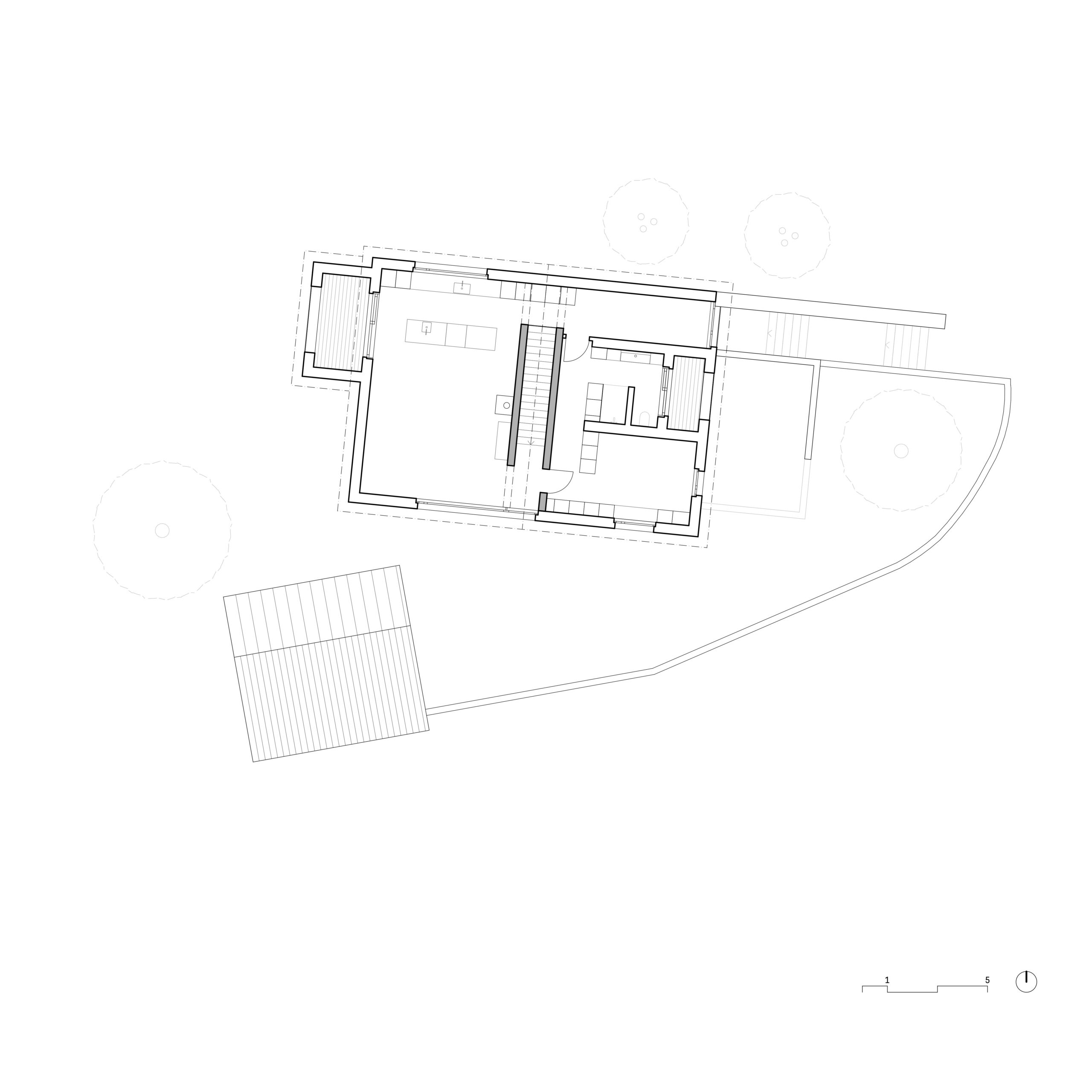
An der Via Flurin in Rueras, Graubünden, entsteht auf einer unbebauten Parzelle ein Wohnhaus, das seine besondere Lage an der Strassenbeugung zwischen zwei Quartieren zum gestalterischen Leitmotiv erhebt. Die Via Flurin verbindet den erhöht gelegenen Bahnhof mit dem historischen Ortskern und windet sich dabei durch unterschiedlich ausgerichtete Wohnquartiere. Das Baugrundstück liegt exakt im Gelenkpunkt zweier solcher Quartiere und verlangt nach einer architektonischen Lösung, die sowohl vermittelnd als auch ordnend wirkt.

Das Projekt interpretiert diese Situation als Chance, durch die Setzung zweier klar differenzierter Baukörper einen Dialog mit den angrenzenden Strukturen zu initiieren: Das Hauptgebäude orientiert sich in Volumetrie und Ausrichtung am nordwestlich gelegenen Quartier, während sich ein pavillonartiger Baukörper auf das südlich angrenzende Umfeld bezieht. Gemeinsam bilden sie ein städtebauliches Gelenk – eine Zäsur und zugleich Verbindung zwischen zwei Siedlungsgefügen.

Architektonisches Konzept

Zentrales gestalterisches Element ist eine leicht geschwungene Mauer, welche der Strassenführung folgend das Grundstück umfasst. In Anlehnung an ein im Dorf oft wiederkehrendes Motiv übernimmt sie sowohl städtebauliche als auch räumlich-funktionale Aufgaben. Zusammen mit einer zweiten, nördlich verlaufenden Mauer bildet sie eine klare Zugangssituation und fasst den Aussenraum. Im Gelenkpunkt, wo die Mauer ihren markantesten Bogen beschreibt, akzentuiert ein Baum den Ort und unterstreicht dessen Bedeutung als Schwelle zwischen öffentlichem und privatem Raum.

Die Mauern aus gestocktem Beton wirken als raumbildende und konstruktive Elemente. Ihre rohe, taktile Oberfläche kontrastiert bewusst mit der Leichtigkeit der übrigen Holzkonstruktion. Sie verankern das Gebäude topografisch, gewähren Sichtschutz und definieren eine klare Abfolge von Aussenräumen – vom öffentlichen Bereich entlang der Strasse, über halbprivate Zonen, bis hin zu geschützten privaten Freiräumen. Darüber hinaus setzen sie im Inneren die Raumgliederung fort und schaffen Übergänge, Rückzugsorte und Blickbezüge.

Materialität und Konstruktion

Die konstruktive Dualität zwischen Beton und Holz bestimmt den architektonischen Ausdruck des Hauses. Während die Mauern als massives, schützendes, lastabtragendes Rückgrat fungieren, entfalten die übrigen Bauteile ihre Wirkung in einer leichten, vorfabrizierten Holzelementbauweise. Aussen zeigt sich unbehandelte Fichte in ihrer natürlichen Vergrauung, während im Inneren naturbelassener Weissputz in Kombination mit sichtbaren Holzbauteilen eine helle und warme Atmosphäre schafft.

Raumorganisation

Das Gebäude ist auf die spezifischen Bedürfnisse seiner Bewohner abgestimmt und folgt einem konsequenten Konzept der Raumzonierung. Die vertikale Organisation bildet klar ablesbare Ebenen aus: Im Erdgeschoss befinden sich die privaten Rückzugsräume, während sich das Dachgeschoss zum landschaftlichen Panorama hin öffnet und den gemeinschaftlichen Funktionen wie Wohnen, Essen und Kochen Gewichtung gibt.

Ein besonderes Augenmerk liegt auf dem im Nordosten gelegenen Büro, das als räumliche Kontrollstation funktioniert – mit direkter Sichtachse zurück zur Küche sowie hinunter zum Eingang. Diese bewusst gesetzte Positionierung nimmt Bezug auf das Raumverständnis von Adolf Loos, bei dem Übersicht, Kontrolle und soziale Nähe durch architektonische Disposition zum Ausdruck kommen.