«Transformation eines Infrastrukturbaus zum Lern- und Lebensort für junge Menschen»
Bauprojekt Direktauftrag
Projektart Vorprojekt
Projektleitung Larissa Cavegn
Mitarbeit Charlotte Vegler
Jahr 2023
Transformation mit Bedeutung
Dort, wo früher Wasser durch Rohre floss und eine Turbine arbeitete, entsteht ein neuer Ort für das Aufbrechen ins Leben. Die Gemeinde Sedrun verwandelt ein ehemaliges Infrastrukturgebäude der Wasserversorgung in ein Zuhause auf Zeit – für Jugendliche, die ihre ersten Schritte in die Arbeitswelt wagen.
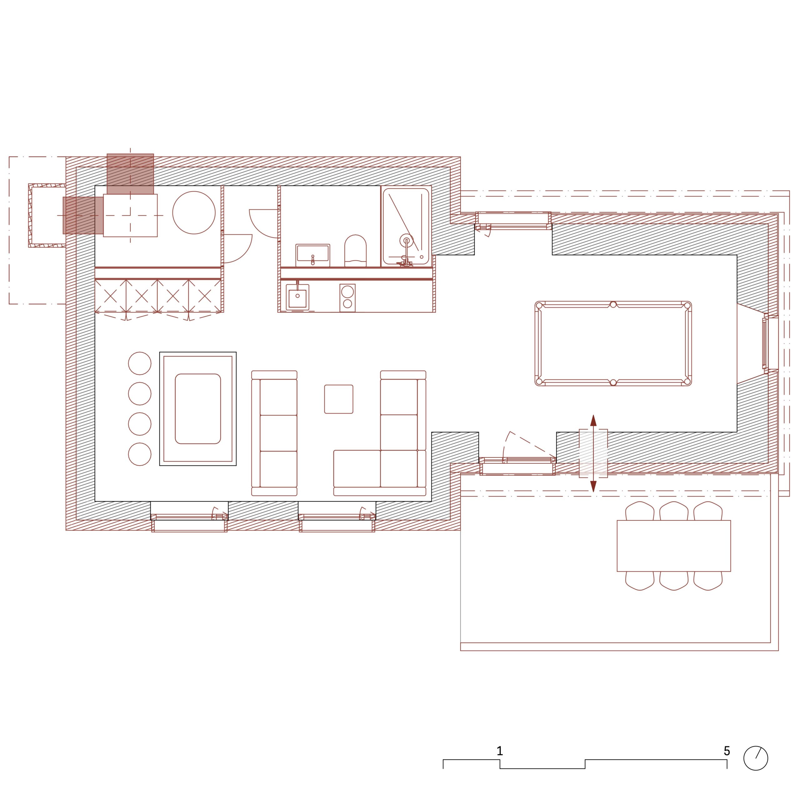
Zwischen Dorf und Dorfbach
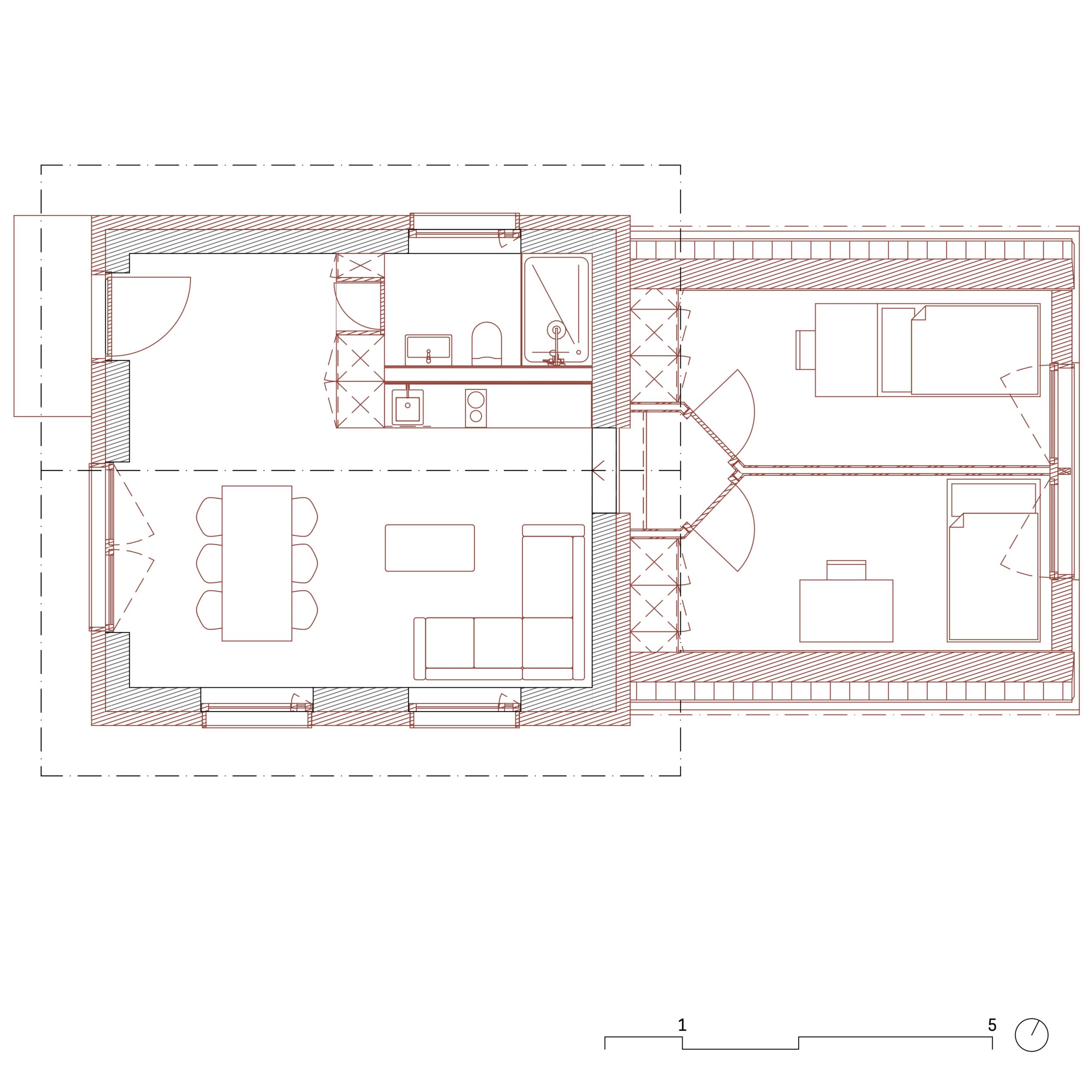
Das bestehende Gebäude liegt eingebettet zwischen Dorfstruktur und Dorfbach. Im Erdgeschoss entsteht ein offenes Jugendlokal – als Treffpunkt, Resonanzraum und Rückzugsort. Darüber, im Obergeschoss, wächst eine Wohngemeinschaft für Lehrlinge heran. Zwei Nutzungen unter einem Dach, verbunden durch das gemeinsame Ziel: junge Menschen zu begleiten, zu stärken und ihnen Raum zu geben.
Ein Holzbau wie ein Nest
Um den neuen Wohnräumen den nötigen Platz zu geben, wird das bestehende Volumen zur Bachseite hin mit einem leichten Holzbau ergänzt. Seine Architektur ist mehr als funktional: Mit schrägen, sich nach oben öffnenden Wänden erinnert der Aufbau an ein Vogelhaus – ein Ort zum Ankommen, zur Ruhe kommen, zum Starten.
Hier finden die Schlafzimmer der Lehrlinge Platz – symbolisch wie kleine Nester am Rand der Welt, bereit zum Aufbruch. Der Bau erzählt vom Flüggewerden, vom Wachsen und vom Mut, sich hinauszuwagen. Und so wird aus dem ehemaligen Zweckbau ein Haus voller Möglichkeiten – getragen von Wasser, Holz und Aufbruchsstimmung.