Sedrun – Via Pitgmun 10

 

Revitalisierung eines historischen Walserhauses

«Sanfte Transformation eines kulturhistorisch wertvollen Bestands»

Bauprojekt  Direktauftrag

Projektart  Bauprojekt

Projektleitung  Larissa Cavegn

Mitarbeit  Joy Ernest, Charlotte Vegler

Jahr  seit 2022

Bestand und Baugeschichte

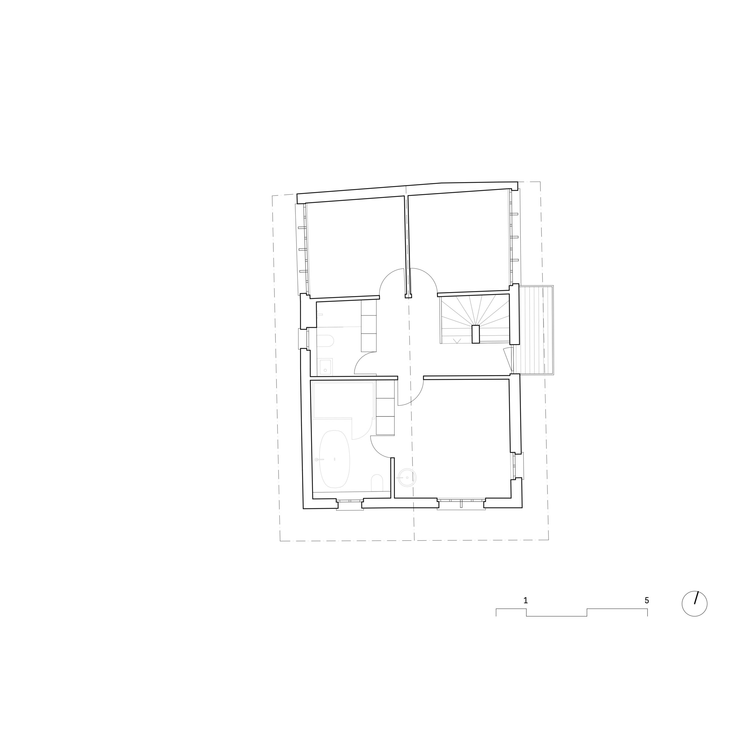
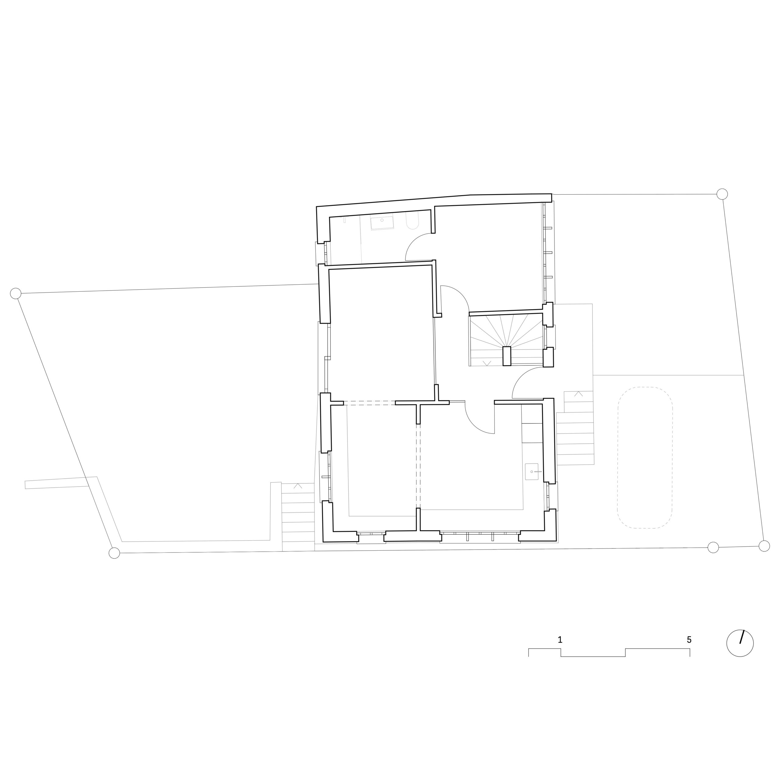
Früheste Fotografien und überlieferte Pläne deuten auf ein Baujahr vor 1900 hin. Beim Gebäude handelt es sich um ein typisches Walserhaus in traditioneller Strickbauweise, wie sie in der alpinen Baukultur häufig anzutreffen ist. Der Altbau zeigt sich in seiner ursprünglichen Form mit einer klaren Vierkammerstruktur, verteilt über zwei Geschosse. Diese Konfiguration steht auf einem massiven, verputzten Sockel aus Bruchsteinmauerwerk, der dem Haus sowohl eine solide statische Basis als auch eine klimatische Pufferzone verleiht.

Die ursprüngliche Nutzung sah vor, dass das Erdgeschoss dem Wohnen und Leben diente, während unter dem steilen Dach die Schlafräume untergebracht waren. Mit der Zeit wandelte sich das Raumbedürfnis deutlich. Das Dach und die Fenster wurden angehoben, um im Dachgeschoss zeitgemässe Raumhöhen zu ermöglichen, wodurch die Schlafräume an Komfort und Zugänglichkeit gewannen. Diese bauliche Veränderung ist ein erstes Zeugnis der fortlaufenden Anpassung des Hauses an sich wandelnde Lebensgewohnheiten.

Spätere Eingriffe und Zustand

Im Laufe der Nutzungsgeschichte wurde im nördlichen Teil des Hauses ein Anbau erstellt, um dem gesteigerten Raumbedürfnis der Bewohnerschaft Rechnung zu tragen. Dieser Erweiterungsbau wurde in Mischbauweise errichtet – mit tragenden Elementen aus Fachwerk, ergänzt durch Beton und Kalksandstein. Obwohl dieser Eingriff funktional nachvollziehbar war, wurde in der handwerklichen Ausführung auf die Baukunst des Bestandes wenig Rücksicht genommen. Die bautechnischen Untersuchungen zeigen, dass in mehreren Bereichen des Anbaus konstruktive Mängel vorhanden sind. Insbesondere im Bereich des Holzes konnte aufgrund unzureichender konstruktiver Ausbildung eine deutliche Fäulnisbildung festgestellt werden. Diese Schäden sind als Folge materialtechnischer Inkongruenz und mangelhafter bauphysikalischer Abstimmung zu interpretieren.

Architektonisches Konzept

Im Zentrum unseres architektonischen Ansatzes steht die Idee, die unterschiedlichen Bauzeiten und Konstruktionsweisen des Gebäudes nicht zu überdecken, sondern sichtbar und lesbar zu machen. Der historische Bestand soll in seinem Charakter gestärkt, die späteren Eingriffe kritisch überarbeitet und die Gesamtheit der Anlage in eine neue, zeitgemässe Nutzungsform überführt werden.

Das ursprüngliche Walserhaus wird dabei durch eine schützende Schindelverkleidung aus Holz neu gefasst. Diese Massnahme dient nicht nur dem langfristigen Witterungsschutz, sondern bringt das Haus in einen Dialog zur umliegenden alpinen Architektur. Im Inneren bleibt die historische Strickbauweise erhalten, wird gereinigt und als gestalterisches Leitmotiv sichtbar belassen. So entsteht eine räumliche Atmosphäre, die das handwerkliche Erbe nicht nur würdigt, sondern sinnlich erfahrbar macht. Die Kammerstruktur wird beibehalten, jedoch im Sinne heutiger Wohnbedürfnisse teilweise geöffnet und zusammengelegt. Dabei bleibt der Ursprung der Raumorganisation deutlich spürbar – unter anderem durch die prägenden Strickköpfe und die auskragenden Überstände.

Der bestehende Anbau wird aufgrund seines baulichen Zustands rückgebaut und durch einen Neubau in zeitgenössischer Fachwerkbauweise ersetzt. Dieser Neubau nimmt konstruktiv Bezug auf die handwerklichen Traditionen der Region, übersetzt sie jedoch in eine klare, moderne Formensprache. Aussen wird der neue Baukörper mit einer vertikal geführten Holzschalung verkleidet, die sich bewusst vom Schindelkleid des Altbaus absetzt und so die Lesbarkeit der unterschiedlichen Bauphasen unterstützt. Im Inneren bleibt das neue Fachwerk offen sichtbar und bildet ein Pendant zur sichtbaren Strickstruktur des Walserhauses, wodurch eine spannungsvolle Beziehung zwischen Alt und Neu entsteht.

Haltung

Das Projekt versteht sich als ein Beitrag zum verantwortungsvollen Umbauen im Bestand. Die architektonische Haltung ist geprägt von der Überzeugung, dass historische Bauwerke nicht eingefroren, sondern behutsam weitergedacht werden sollen. In diesem Sinne wird das Walserhaus nicht musealisiert, sondern weiterentwickelt – mit Respekt vor der Baugeschichte, mit Sorgfalt im Umgang mit Materialität und mit einem klaren Bekenntnis zu handwerklicher Qualität. Die Transformation erfolgt nicht durch Verdrängung des Alten, sondern durch eine gestalterische Verschränkung von Alt und Neu, wodurch eine neue architektonische Identität entsteht, die das Gewachsene nicht versteckt, sondern sichtbar ehrt.